Set on just over five acres, this charming lifestyle property captures lovely views across the ocean, rugged coastal cliffs, and rolling hills, creating a peaceful connection to the surrounding landscape.
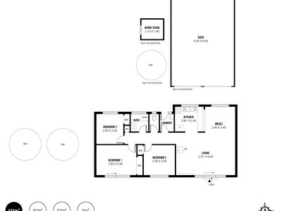
The idyllic three-bedroom, one-bathroom home is warm and welcoming, offering comfortable living now with potential to add your own personal touches over time. A cosy combustion fireplace creates a relaxed atmosphere through the cooler months, while large windows frame the ever-changing coastal outlook. Both the living room and master bedroom enjoy beautiful views, allowing the scenery to be part of everyday life.
Live in the home as it is and enjoy the simplicity and serenity it already offers. Neat, tidy, and well maintained throughout, the home presents comfortably from day one. Rainwater supply and generous shedding add everyday practicality, supporting a relaxed rural lifestyle with room for storage and hobbies.
Located in the tightly held coastal community of Cape Jervis, the property is surrounded by pristine beaches, dramatic coastline, and outstanding fishing. With Deep Creek National Park close by and the Fleurieu Peninsula’s natural beauty on your doorstep, this is a place where life slows down and nature takes centre stage.
Whether you are seeking a peaceful permanent home, a coastal escape, or a lifestyle change with space to breathe, this is a rare opportunity to secure acreage with views, privacy, and genuine coastal charm.
Features
- Open Fireplace
- Shed
- Workshop
- Water Tank















































